4 Bedroom 3 Bathroom 1,100 - 1,500 ft2
Bungalow Fireplace Central Air Conditioning, Air Exchanger Forced Air
$899,900
Quality and value are paramount in this impressive offering from Rice Homes. With 2,369 sq. ft. of finished living area this 4 bedroom, 3 bath home is sure to please. Features include: open concept living area with 9 & 10' ceilings, gas fireplace, center island with kitchen, 3 appliances, main floor laundry, master ensuite with walk in closet, pre-engineered hardwood floors, front and rear covered porches, basement fully finished, Hardie Board exterior for low maintenance. Concrete drive & walkway. Call or email L.A. for long list of standard features and finishes. Newport Landing features an incredible location just a short distance from all the amenities Grand Bend is famous for. Walk to shopping, beach, medical and restaurants! Noe! short term rentals are not allowed in this development, enforced by restrictive covenants registered on title. Price includes HST for Purchasers buying as principal residence. Property has not been assessed yet. (id:51300)
Property Details
| MLS® Number | X12665526 |
| Property Type | Single Family |
| Community Name | Grand Bend |
| Amenities Near By | Beach, Golf Nearby |
| Features | Cul-de-sac, Level Lot, Irregular Lot Size, Flat Site, Sump Pump |
| Parking Space Total | 6 |
Building
| Bathroom Total | 3 |
| Bedrooms Above Ground | 2 |
| Bedrooms Below Ground | 2 |
| Bedrooms Total | 4 |
| Amenities | Fireplace(s) |
| Appliances | Garage Door Opener Remote(s), Water Heater, Water Meter, Water Heater - Tankless, Barbeque, Dishwasher, Microwave, Stove, Refrigerator |
| Architectural Style | Bungalow |
| Basement Development | Finished |
| Basement Type | N/a (finished) |
| Construction Style Attachment | Detached |
| Cooling Type | Central Air Conditioning, Air Exchanger |
| Exterior Finish | Hardboard, Stone |
| Fireplace Present | Yes |
| Foundation Type | Poured Concrete |
| Heating Fuel | Natural Gas |
| Heating Type | Forced Air |
| Stories Total | 1 |
| Size Interior | 1,100 - 1,500 Ft2 |
| Type | House |
| Utility Water | Municipal Water |
Parking
Land
| Acreage | No |
| Land Amenities | Beach, Golf Nearby |
| Sewer | Sanitary Sewer |
| Size Depth | 100 Ft ,3 In |
| Size Frontage | 53 Ft ,8 In |
| Size Irregular | 53.7 X 100.3 Ft |
| Size Total Text | 53.7 X 100.3 Ft |
| Zoning Description | R4-2 (h12) |
Rooms
| Level | Type | Length | Width | Dimensions |
|---|
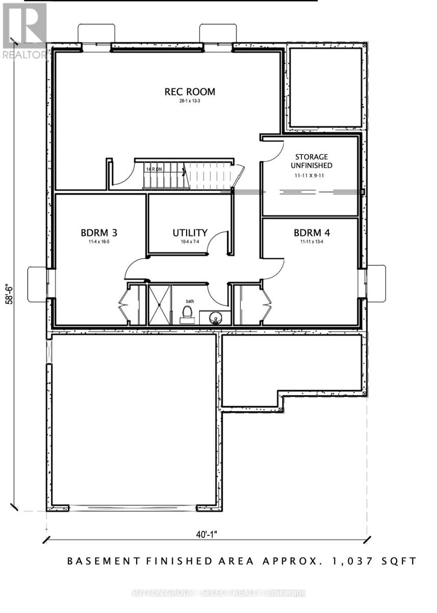
| Lower Level | Utility Room | 3.15 m | 2.24 m | 3.15 m x 2.24 m |
| Lower Level | Other | 3.63 m | 3.02 m | 3.63 m x 3.02 m |
| Lower Level | Recreational, Games Room | 8.79 m | 4.04 m | 8.79 m x 4.04 m |
| Lower Level | Bedroom 3 | 5 m | 3.45 m | 5 m x 3.45 m |
| Lower Level | Bedroom 4 | 4.06 m | 3.63 m | 4.06 m x 3.63 m |
| Main Level | Foyer | 2.26 m | 1.43 m | 2.26 m x 1.43 m |
| Main Level | Kitchen | 3.89 m | 3.51 m | 3.89 m x 3.51 m |
| Main Level | Dining Room | 4.98 m | 3.51 m | 4.98 m x 3.51 m |
| Main Level | Living Room | 2.21 m | 4.29 m | 2.21 m x 4.29 m |
| Main Level | Primary Bedroom | 4.27 m | 3.51 m | 4.27 m x 3.51 m |
| Main Level | Bedroom 2 | 3.51 m | 3.35 m | 3.51 m x 3.35 m |
| Main Level | Laundry Room | 2.13 m | 1.83 m | 2.13 m x 1.83 m |
https://www.realtor.ca/real-estate/29219273/19-lois-court-lambton-shores-grand-bend-grand-bend